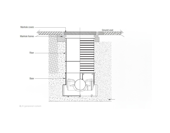
Manhole rings Topslabs and bases
Manhole rings – Coming Soon!
Keep watching this space!
All size manhole Topslabs and bases made to order .
Custom Topslabs available in any required size / specification
Cast in frames
Benching and coring done on site


